Details

Theo Van Doesburgstraat 63

Deze uitstekend onderhouden en sfeervolle eengezinswoning met luxe badkamer en eigen parkeerplaats is gelegen in een rustige en kindvriendelijke wijk met diverse speelvoorzieningen en veel groen. Op korte afstand vindt u winkels, scholen en andere dagelijkse voorzieningen. Aan het einde van de straat ligt het uitgestrekte Maximapark, een ideale plek voor sport, wandelen en ontspanning. Treinstation Utrecht Terwijde bevindt zich op slechts enkele minuten lopen, waardoor u binnen zes minuten al op Utrecht Centraal staat.

Omschrijving

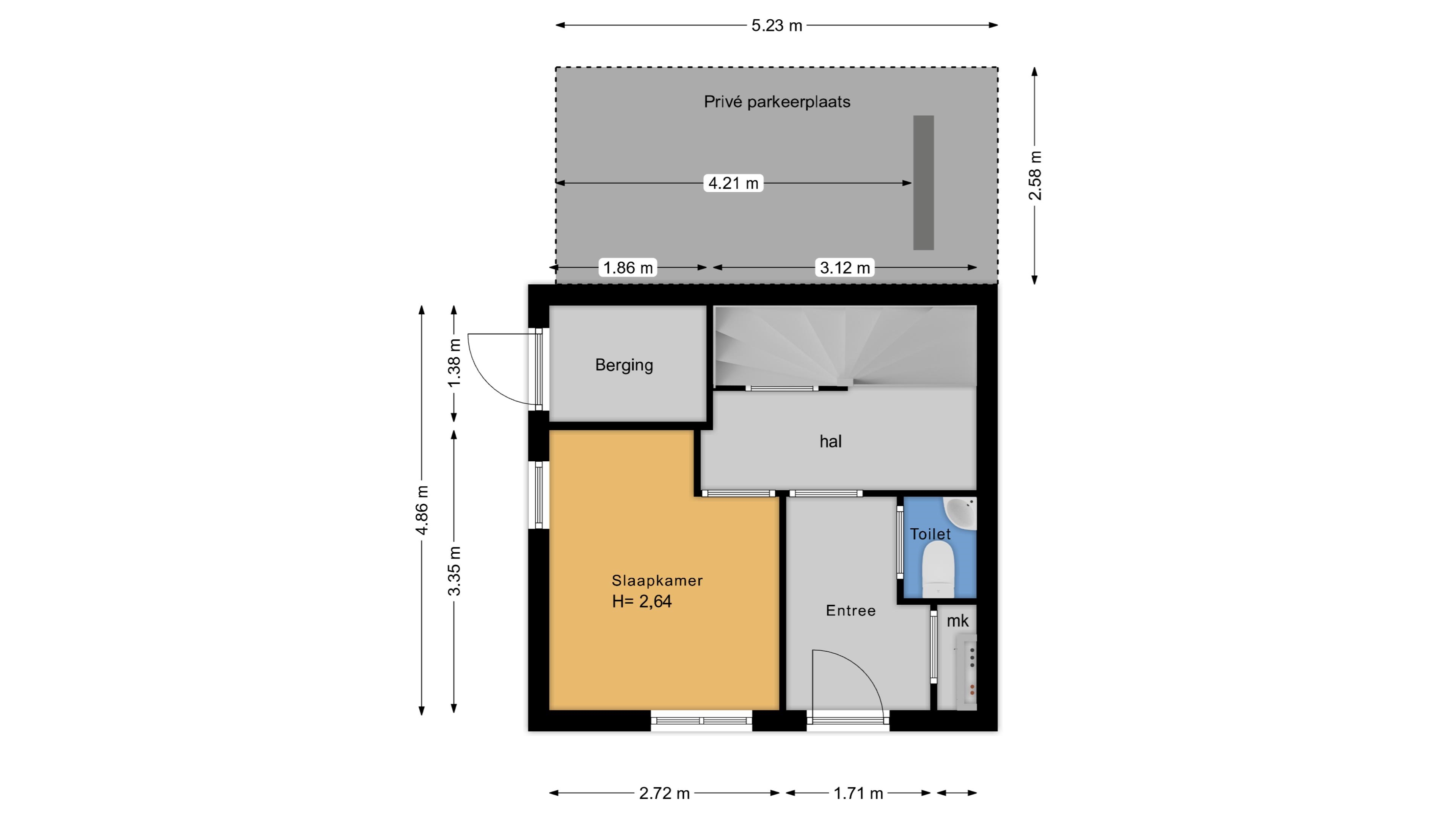
Deze uitstekend onderhouden en sfeervolle eengezinswoning met luxe badkamer en eigen parkeerplaats is gelegen in een rustige en kindvriendelijke wijk met diverse speelvoorzieningen en veel groen. Op korte afstand vindt u winkels, scholen en andere dagelijkse voorzieningen. Aan het einde van de straat ligt het uitgestrekte Maximapark, een ideale plek voor sport, wandelen en ontspanning. Treinstation Utrecht Terwijde bevindt zich op slechts enkele minuten lopen, waardoor u binnen zes minuten al op Utrecht Centraal staat. Indeling Entree/hal, toilet met fonteintje, (werk)kamer (3,35 x 2,72), berging (1,86 x 1,38), trap naar. Eerste verdieping Royale woonkamer (7,80 x 4,86) met open keuken voorzien van vele inbouwapparatuur en deur naar balkon (circa) 6,7 m², trap naar.. Tweede verdieping Overloop, 2 slaapkamers: slaapkamer 1 (4,86 x 3,26), slaapkamer 2 (2,94 x 2,45), luxe badkamer (2,45 x 1,94) met inloop douche en 2 vaste wastafels, separate 2e toilet met fonteintje. Balkon Aan de voorzijde voorzien van een balkon (circa 6,7 m2). Bijzonderheden • Gehele woning is netjes onderhouden en goed afgewerkt; • Energielabel A, houten kozijnen met dubbele beglazing; • Woning voorzien van stadsverwarming; • Woning beschikt over eigen privé parkeerplaats achter de woning; • Het Prinses Maximapark op een steenworp afstand; • Station en uitvalswegen liggen op loopafstand van de woning; • Goede verbindingen naar snelwegen A2 en A12; • Erfpacht is voortdurend afgekocht; • Snelle oplevering mogelijk.

Kenmerken

    Bouw
  • Eengezinswoning
  • Bestaande bouw
  • 2006
  • Plat dak
    Indeling
  • 4
  • 3
  • 1
    Oppervlakten
  • 97 m2
  • 2 m2
  • 341 m3
    Energie
  • Stadsverwarming

Straatzicht

Locatie