Details

1e Daalsedijk 143

Ben je het zat om te huren..? Toch in Utrecht centrum wonen en je eigen woning helemaal naar wens maken? 1e Daalsedijk 143 biedt die kans. Deze woning kan je volledig naar je eigen smaak inrichten. Met een fijne indeling en veel lichtinval kun je hier een comfortabel en sfeervol thuis creëren dat volledig aansluit op jouw woonwensen. De woning beschikt over een lichte woonkamer, een keuken en meerdere kamers die flexibel in te richten zijn, bijvoorbeeld als slaap- of werkkamer tevens een buitenruimte met een stenen berging. De ligging is ideaal: dichtbij het centrum van Utrecht, met winkels, horeca en openbaar vervoer op korte afstand.

Omschrijving

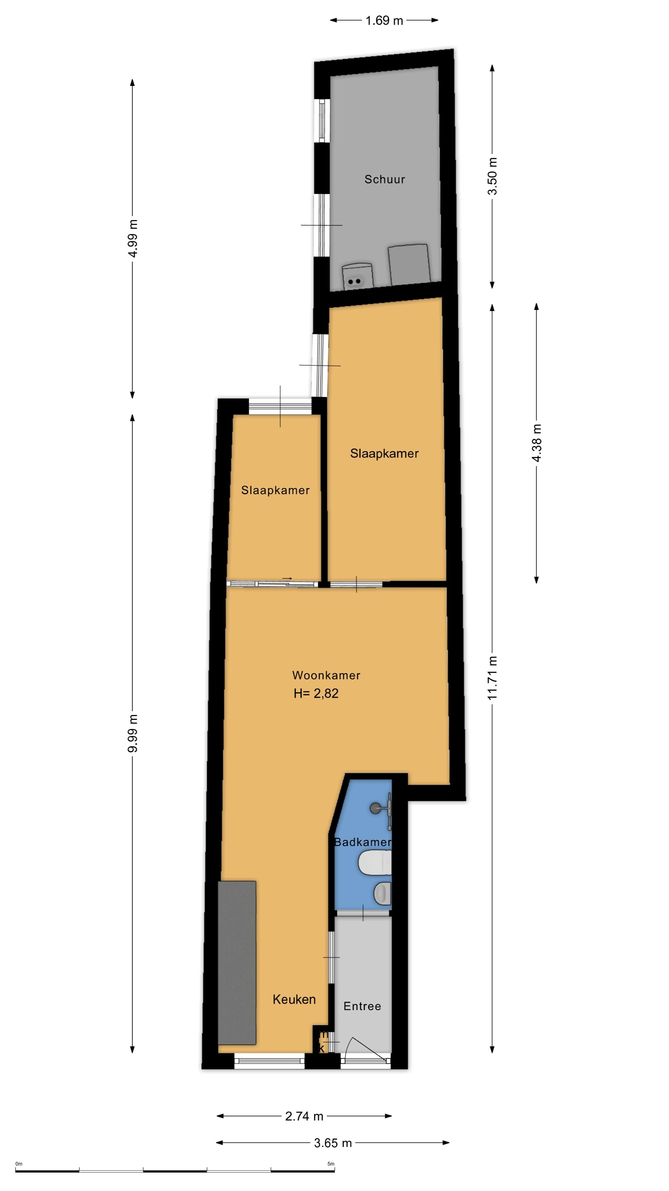
Ben je het zat om te huren..? Toch in Utrecht centrum wonen en je eigen woning helemaal naar wens maken? 1e Daalsedijk 143 biedt die kans. Deze woning kan je volledig naar je eigen smaak inrichten. Met een fijne indeling en veel lichtinval kun je hier een comfortabel en sfeervol thuis creëren dat volledig aansluit op jouw woonwensen. De woning beschikt over een lichte woonkamer, een keuken en meerdere kamers die flexibel in te richten zijn, bijvoorbeeld als slaap- of werkkamer tevens een buitenruimte met een stenen berging. De ligging is ideaal: dichtbij het centrum van Utrecht, met winkels, horeca en openbaar vervoer op korte afstand. Indeling Entree/hal, woonkamer (7,50 x 2,74 m), nette keuken (3,00 x 2,74 m) voorzien van kasten en diverse inbouwapparatuur, eenvoudige badkamer met douche, toilet en vaste wastafel, slaapkamer 1(2,49 x 2,74 m), slaapkamer 2(4,38 x 1,69 m), achtertuin van circa 9 m² met stenen berging (3,50 x 1,69 m) . Tuin De achtertuin is circa 9 m² groot. Bijzonderheden - Gelegen op een perfecte locatie in de gewilde wijk Pijlsweerd-Zuid, op loopafstand van de bushalte en de Amsterdamsestraatweg; - Een zeer goede alternatief voor huren; - Centrale ligging nabij Utrecht Centraal Station, het stadscentrum, diverse winkels en horecagelegenheden; - Woning is deels voorzien van kunststof kozijnen met dubbele beglazing; - De woning dient gemoderniseerd te worden en kan geheel naar eigen smaak worden gerenoveerd; - Verwarming en warm water door middel van Cv ketel Intergas; - Geschikt voor starters die dicht bij het centrum willen wonen.

Kenmerken

    Bouw
  • Benedenwoning
  • Bestaande bouw
  • 1910
  • Samengesteld dak
    Indeling
  • 3
  • 2
  • 1
  • 1
    Oppervlakten
  • 34 m2
  • 5 m2
  • 159 m3
    Energie
  • C.v.-ketel
  • C.v.-ketel
  • Eigendom

Straatzicht

Locatie